Share
(Українська)
освітнього центру державної установи “Школа супергероїв”, що розташований у закладі охорони здоров’я: Комунальне некомерційне підприємство «Криворізька міська лікарня № 16» Криворізької міської ради за адресою: Дніпропетровська область, м. Кривий Ріг, вул. Сергія Колачевського,55;
освітнього центру державної установи «Школа супергероїв», що розташований в закладі охорони здоров’я Комунальне підприємство «Рівненська обласна дитяча лікарня» Рівненської обласної ради за адресою: Рівненська область, м. Рівне, вул. Київська,60;
освітнього центру державної установи «Школа супергероїв», що розташований в закладі охорони здоров’я Комунальне некомерційне підприємство «Вінницький обласна клінічна дитяча лікарня» Вінницької обласної ради за адресою: Вінницька область, м. Вінниця, Хмельницьке шосе, 108.
Громадська організація “Маленьке серце з мистецтвом” започаткувала освітній проєкт для дітей у лікарнях у 2016 році, який продовжив своє існування на державному рівні, шляхом створення державної установи “Школа супергероїв”, і всіляко підтримує її розвиток в рамках укладеного меморандуму. Наразі державна установа «Школа супергероїв планує розширити мережу освітніх центрів та відкрити 3 нові освітні центри у закладах охорони здоров’я у Вінниці, Кривому Розі та Рівному. У зв’язку з цим оголошуємо конкурс на проведення трьох поточних ремонтних робіт у зазначених містах.
Інформація про Замовника робіт:
ГО «Маленьке серце з мистецтвом»
ЄДРПОУ 39749010
Юридична адреса (місцезнаходження):м. Київ, вул. Інститутська, буд.22/7
Поштова адреса 01135, Київ, а/с 16 ГО «Маленьке серце з мистецтвом»
e-mail info@smallheartwithart.org
Голова правління: Людмила Сокур
Телефон:0934928995
Інформація про конкурси:
Форма проведення: конкурс на проведення ремонтних робіт
Початок прийому заявок на участь 08.03.2024 09:00
Закінчення прийому заявок на участь 24.03.2024 18:00
Для участі в конкурсі необхідно надати наступні документи:
1. Заявка на участь у Конкурсі з переліком документів, що додаються, завіряється особою, яка має право першого підпису, та печаткою (за наявності).
2. Виписка з Єдиного державного реєстру юридичних осіб, фізичних осіб-підприємців та громадських формувань
3. Витяг з реєстру платника податків
4. Довідка про відкритий банківський рахунок
5. Локальний кошторис на поточний ремонт
6. Договірна ціна на поточний ремонт
Свої пропозиції надсилайте на e-mail info@smallheartwithart.org
З питаннями можна звернутися за номером 0934928995 – Людмила Сокур, голова правління громадської організації “Маленьке серце з мистецтвом”
Всі пропозиції мають бути розроблені з урахуванням кошторисних норм України у будівництві, а саме Настанови з визначення вартості проектних, науково-проектних, вишукувальних робіт та експертизи проектної документації на будівництво, затвердженої наказом Міністерства розвитку громад та територій України 01 листопада 2021 року № 281.
Порядок обрання переможця конкурсу:
Під час засідання з обрання переможця, що формується в робочу групу з представників громадської організації, закладів охорони здоров’я та державної установи “Школа супергероїв”, визначатиметься переможець шляхом голосування за найвигіднішу договірну цінову пропозицію. При цьому враховуватиметься не лише цінові параметри, але й досвід та репутація підрядника, які будуть перевірені за результатами аналізу відкритих джерел. Відбір переможця буде здійснюватися з метою максимізації вигоди та забезпечення високої якості надання послуг.
Загальна інформація для майбутнього переможця конкурсу
Переможець конкурсу зобов’язаний буде підписати договір та відповідну кошторисну документацію перед початком виконання робіт.
Обсяг виконання робіт: роботи повинні відповідати розробленій та наданій візуалізації простору. Основною вимогою є втілення візуалізованого дизайну, з використанням брендованих фотошпалер, вінілової плитки на підлозі та монтаж інтерактивної панелі. Стандартна візуалізація, що адоптується для кожного простору:






Термін виконання робіт: всі роботи повинні бути завершені протягом 2 місяців з моменту підписання договору та отримання передплати. Завершення проєкту має відбутися не пізніше 31 липня 2024 року, якщо додаткові умови не будуть визначені умовами договору, шляхом підписання Акту виконаних робіт.
ІНФОРМАЦІЯ ПРО ПРЕДМЕТ КОНКУРСУ №1
Поточний ремонт приміщення освітнього центру державної установи «Школа супергероїв», розташованого в закладі охорони здоров’я Комунальне некомерційне підприємство «Криворізька міська лікарня № 16» Криворізької міської ради
Адреса: Дніпропетровська область, м. Кривий Ріг, вул. Сергія Колачевського, 55
Опис приміщення, що підлягає облаштуванню:
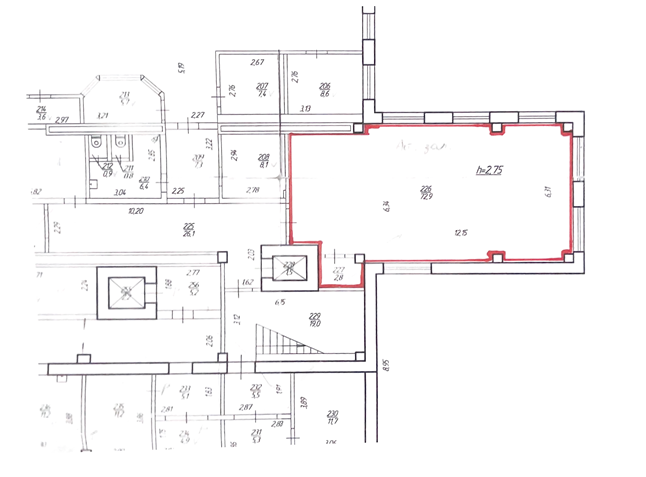
Площа приміщення 99,04 кв.м, розташоване на першому поверсі головного корпусу структурного підрозділу КНП «Криворізька міська лікарня № 16» Криворізької міської ради, що включає: вхідну групу (коридор), учбову кімнату для дітей початкових класів, учбову кімнату для дітей 5-11 класів, кабінет (зону) психолога, санвузол, рекреаційну зону для дітей дошкільного віку (хол).

ІНФОРМАЦІЯ ПРО ПРЕДМЕТ КОНКУРСУ №2
Поточний ремонт приміщення освітнього центру державної установи «Школа супергероїв», розташованого в закладі охорони здоров’я Комунальне підприємство «Рівненська обласна дитяча лікарня» Рівненської обласної ради
Адреса: Рівненська область, м. Рівне, вул. Київська,60.
Опис приміщення, що підлягає облаштуванню:
Площа приміщення 72,9 кв.м, розташоване на 2 поверсі стаціонарного корпусу КП «Рівненська обласна дитяча лікарня» Рівненської обласної ради, що включає зону для дітей шкільного віку, зону для роботи психолога, рекреаційну зону.

ІНФОРМАЦІЯ ПРО ПРЕДМЕТ КОНКУРСУ №3
Поточний ремонт приміщення освітнього центру державної установи «Школа супергероїв», розташованого в закладі охорони здоров’я Комунальне некомерційне підприємство «Вінницький обласна клінічна дитяча лікарня» Вінницької обласної ради
Адреса: Вінницька область, м. Вінниця, Хмельницьке шосе, 108
Опис приміщення, що підлягає облаштуванню:
Площа приміщення 16,6 кв.м, 10,6 кв.м., 32,0 кв.м, 3,8 кв.м. (загальна площа 63,0 кв.м.) розташовані на 1 (першому) поверсі адміністративного корпусу комунального некомерційного підприємства «Вінницький обласна клінічна дитяча лікарня» Вінницької обласної ради, що включає вхідну групу (коридор), учбову кімнату для дітей дошкільного віку з зоною для роботи з психологом, учбову кімнату для дітей шкільного віку з рекреаційною зоною

Receive by mail the most important information from the life of the organization
